Nếu anh/chị sở hữu lô đất 5×20 nhưng vẫn còn phân vân chưa biết nên chọn mẫu nhà nào phù hợp nhu cầu sử dụng và đúng với sở thích của mình. Bài viết dưới đây, Thợ Việt xin giới thiệu 65+ mẫu nhà ống 1 tầng đẹp 5×20 giúp anh/chị dễ dàng tham khảo và có thêm cơ sở để đưa ra quyết định đúng đắn.

Top 65+ mẫu nhà ống 1 tầng đẹp 5×20 đẹp, tiện nghi
Mẫu nhà ống 1 tầng 5×20 là giải pháp tối ưu dành cho những anh/chị sở hữu lô đất có chiều rộng hạn chế. Dưới đây là một số mẫu nhà ống 1 tầng đẹp 5×20 được thiết kế hiện đại, tiện nghi và phù hợp với nhiều phong cách thẩm mỹ khác nhau.
Mẫu nhà ống 1 tầng đẹp 5×20 hiện đại
Mẫu nhà ống 1 tầng 5×20 hiện đại chú trọng vào các đường nét kiến trúc tối giản, khỏe khoắn và mạnh mẽ. Thiết kế thường sử dụng vật liệu mới như: Kính cường lực, thép và bê tông trần, kết hợp với các hình khối vuông vắn để tạo nên vẻ đẹp sang trọng và tinh tế.

Mẫu nhà ống 1 tầng đẹp 5×20 tối giản
[Mẫu nhà ống 1 tầng 5×20 tối giản là lựa chọn lý tưởng cho những anh/chị yêu thích phong cách thanh lịch và gọn gàng. Phong cách thiết kế tập trung vào sự tinh gọn, tối ưu sự tiện nghi và loại bỏ các chi tiết rườm rà để mang lại không gian sống thông thoáng và hiện đại.
Mẫu nhà ống 1 tầng đẹp 5×20 cổ điển
Mẫu nhà ống 1 tầng 5×20 cổ điển mang lại vẻ đẹp lộng lẫy và kiêu sa dù chỉ có một tầng. Thiết kế cổ điển thường nổi bật với các chi tiết trang trí tinh xảo ở mặt tiền như: Phào chỉ, hoa văn đắp nổi, và cột trụ tròn hoặc vuông.
Mái nhà thường sử dụng mái Mansard hoặc mái dốc, tạo nên sự cổ kính và hoài niệm.

Mẫu nhà ống 1 tầng đẹp 5×20 tân cổ điển
Mẫu nhà ống 1 tầng 5×20 tân cổ điển là sự kết hợp hài hòa giữa nét đẹp truyền thống của kiến trúc cổ điển và sự thoáng đạt của phong cách hiện đại. Mẫu nhà tân cổ điển giữ lại các đường nét trang trí mềm mại và tỷ lệ vàng đặc trưng nhưng đã được lược bỏ bớt sự cầu kỳ.

Mẫu nhà ống 1 tầng đẹp 5×20 mái bằng
Mẫu nhà ống 1 tầng 5×20 mái bằng là kiểu thiết kế phổ biến và linh hoạt nhất, đặc biệt phù hợp với khu vực thành thị. Mái bằng tạo ra cảm giác vững chãi và Khỏe khoắn cho ngôi nhà, đồng thời cho phép anh/chị tận dụng phần mái để làm sân thượng, sân phơi, hoặc vườn trồng cây xanh.

Mẫu nhà ống 1 tầng đẹp 5×20 mái Thái
Mẫu nhà ống 1 tầng 5×20 mái Thái mang lại vẻ đẹp truyền thống nhưng vẫn rất thanh thoát và duyên dáng. Điểm nổi bật của mái Thái là khả năng chống nóng, thoát nước mưa nhanh chóng và tạo điểm nhấn về mặt thẩm mỹ.
Kiểu mái này thường có độ dốc nhất định, giúp ngôi nhà trông cao ráo hơn, đồng thời giải quyết tốt vấn đề nhiệt độ trong nhà, rất phù hợp với khí hậu nóng ẩm ở Việt Nam.

Mẫu nhà ống 1 tầng đẹp 5×20 mái lệch
Mẫu nhà ống 1 tầng 5×20 mái lệch là một thiết kế sáng tạo và phá cách, mang đậm tính nghệ thuật của kiến trúc hiện đại. Mái lệch không chỉ tạo ra hình khối độc đáo và cá tính cho mặt tiền ngôi nhà mà còn có ưu điểm giúp điều hòa không khí và lấy sáng hiệu quả hơn.

Mẫu nhà ống 1 tầng đẹp 5×20 mái ngói
Mẫu nhà ống 1 tầng 5×20 mái ngói gợi nhớ về những ngôi nhà truyền thống và ấm cúng của người Việt. Mặc dù là nhà ống, việc sử dụng mái ngói (thường là ngói đất nung hoặc ngói màu) vẫn mang lại vẻ đẹp gần gũi và thân thuộc.
Mái ngói có ưu điểm vượt trội về khả năng cách nhiệt, giữ cho không gian bên trong luôn mát mẻ.

Mẫu nhà ống 1 tầng đẹp 5×20 mái tôn
Mẫu nhà ống 1 tầng 5×20 mái tôn là giải pháp kinh tế nhất. Mái tôn có chi phí lắp đặt thấp, thi công nhanh chóng và trọng lượng nhẹ, giúp giảm tải cho kết cấu móng nhà. Tuy nhiên, để đạt được tính thẩm mỹ cao, anh/chị nên chọn loại tôn sóng giả ngói hoặc tôn cách nhiệt có màu sắc hài hòa với ngôi nhà.

Mẫu nhà ống 1 tầng đẹp 5×20 2 phòng ngủ
Mẫu nhà ống 1 tầng 5×20 2 phòng ngủ là thiết kế tiêu chuẩn và lý tưởng cho gia đình có 3 – 4 thành viên. Bố cục thường tập trung vào việc tạo ra không gian sinh hoạt chung rộng rãi (phòng khách, bếp ăn liên thông) và hai phòng ngủ được đặt ở vị trí yên tĩnh hơn.

Mẫu nhà ống 1 tầng đẹp 5×20 3 phòng ngủ
Mẫu nhà ống 1 tầng 5×20 3 phòng ngủ đòi hỏi sự tính toán tinh tế và sắp xếp khoa học để tối từng diện tích đất. Để đạt được 3 phòng ngủ trên một tầng, thiết kế thường cần phải giảm diện tích của phòng khách hoặc khu bếp.
Một giải pháp Thường thấy là bố trí phòng ngủ thứ 3 ở gác lửng hoặc sắp xếp 3 phòng ngủ liên tiếp dọc theo chiều dài ngôi nhà.

Mẫu nhà ống 1 tầng đẹp 5×20 có gác lửng
Mẫu nhà ống 1 tầng 5×20 có gác lửng là giải pháp thông minh để mở rộng không gian sử dụng mà không cần xây thêm tầng. Gác lửng thường được bố trí làm phòng thờ, phòng làm việc hoặc phòng ngủ phụ, giúp tăng thêm khoảng 30 – 50% diện tích sàn.

Mẫu nhà ống 1 tầng đẹp 5×20 nông thôn
Mẫu nhà ống 1 tầng 5×20 nông thôn thường ưu tiên sự đơn giản, gần gũi và hòa hợp với thiên nhiên. Vật liệu xây dựng thường là loại vật liệu truyền thống và phổ thông, dễ kiếm ở địa phương để tối ưu chi phí.
Nội thất bên trong được bố trí thoáng mát, tập trung vào khu vực sinh hoạt chung lớn, thể hiện nét đẹp văn hóa nông thôn.

Mẫu nhà ống 1 tầng đẹp 5×20 giá 500 triệu
Mẫu nhà ống 1 tầng 5×20 giá 500 triệu là mục tiêu thách thức nhưng khả thi nếu có sự tính toán Kỹ lưỡng. Để đạt được mức chi phí này, ngôi nhà phải được thiết kế theo phong cách tối giản (không phào chỉ, hoa văn cầu kỳ), sử dụng mái tôn hoặc mái bằng đơn giản.

#Tham khảo: Dịch vụ sửa nhà trọn gói
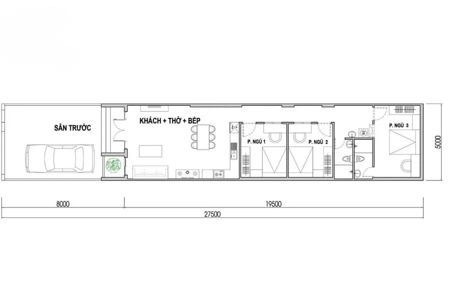
Bản vẽ thiết kế mẫu nhà ống 5×20 1 tầng
Bản vẽ nhà ống 1 tầng đẹp 5×20 hiện đại
Bản vẽ nhà ống 1 tầng 5×20 hiện đại tập trung vào hình khối tối giản và bố trí nội thất thông minh, mang lại cảm giác thoáng đãng và tiện nghi. Thiết kế thường kết hợp vật liệu hiện đại như: Kính cường lực, thép và bê tông trần, tạo vẻ ngoài khỏe khoắn và độc đáo cho ngôi nhà.

Bản vẽ nhà ống 1 tầng đẹp 5×20 tối giản
Bản vẽ mẫu nhà ống 1 tầng đẹp tối giản tập trung tận dụng ánh sáng tự nhiên và mang lại cảm giác yên tĩnh. Thiết kế tối giản luôn ưu tiên bố trí ngăn nắp, gọn gàng, biến không gian hạn chế thành nơi nghỉ ngơi thư giãn, đem đến sự bình yên và tập trung cho anh/chị.

Bản vẽ nhà ống 1 tầng đẹp 5×20 cổ điển
Bản vẽ mặt bằng mẫu nhà ống 1 tầng 5×20 phong cách cổ điển hướng đến việc tạo ra các phòng riêng biệt, ấm cúng và kín đáo, đúng tinh thần kiến trúc cổ điển. Nội thất sử dụng gỗ hoặc bọc da cao cấp, mang lại cảm giác sang trọng, ấm áp và quyền quý cho ngôi nhà.

Bản vẽ nhà ống 1 tầng đẹp 5×20 tân cổ điển
Bản vẽ nhà ống 1 tầng đẹp 5×20 phong cách tân cổ điển kết hợp các đường nét mềm mại, tinh tế với bố cục hiện đại, tạo vẻ ngoài sang trọng nhưng vẫn tiện nghi. Nội thất thường sử dụng vật liệu cao cấp như: Gỗ tự nhiên, đá marble và kim loại mạ vàng, mang lại cảm giác sang trọng và đẳng cấp.

Lý do mẫu nhà ống 1 tầng đẹp 5×20 được ưa chuộng
Tổng chi phí xây dựng hợp lý
Mẫu nhà ống 1 tầng đẹp 5×20 có tổng chi phí xây dựng hợp lý nhờ kết cấu đơn giản, giúp giảm đáng kể lượng vật liệu dư thừa trong quá trình thi công. Thiết kế đơn giản hỗ trợ gia chủ kiểm soát ngân sách chặt chẽ hơn, từ đó dự trù kinh phí chính xác và hạn chế tối đa các khoản phát sinh ngoài kế hoạch.

Thi công nhanh, tiến độ hoàn thiện ngắn
Nhờ chỉ có một tầng, quá trình thi công mẫu nhà ống 5×20 diễn ra nhanh hơn và rút ngắn đáng kể thời gian hoàn thiện so với các mẫu nhà nhiều tầng. Tốc độ thi công nhanh giúp tiết kiệm chi phí nhân công và hỗ trợ gia đình sớm ổn định cuộc sống trong thời gian chỉ vài tháng.

Dễ dàng bố trí nội thất
Diện tích 5×20 giúp kiến trúc sư bố trí phòng khách, phòng ngủ, bếp và vệ sinh theo cách khoa học, tạo sự gọn gàng cho toàn bộ không gian. Thiết kế nhà ống còn hỗ trợ tối ưu từng mét vuông sử dụng, mang lại sự thuận tiện trong sinh hoạt hằng ngày của các thành viên.

Thuận tiện cho việc cải tạo và nâng cấp sau này
Nhà ống 1 tầng 5×20 có cấu trúc linh hoạt, dễ dàng mở rộng thêm các phòng theo nhu cầu sử dụng trong tương lai của gia đình. Quá trình cải tạo cũng trở nên đơn giản hơn, cho phép bổ sung phòng hoặc cải thiện tiện ích mà không phải can thiệp quá sâu vào kết cấu chính của ngôi nhà.

Những lưu ý khi quyết định thi công mẫu nhà ống 1 tầng đẹp 5×20
Xác định nhu cầu sử dụng và số lượng phòng
Anh/chị cần xác định rõ số lượng phòng và mục đích sử dụng của từng khu vực để kiến trúc sư triển khai phương án bố trí khoa học. Việc nắm rõ nhu cầu thực tế giúp tối ưu diện tích, hạn chế lãng phí và giảm thiểu chi phí vô lý phát sinh trong quá trình thi công.
Dự trù chi phí phù hợp với diện tích 5×20
Dự trù ngân sách xây dựng là bước quan trọng để kiểm soát chi phí tổng thể của nhà ống 1 tầng 5×20. Anh/chị nên tính toán chi phí vật liệu, nhân công, thiết kế và các khoản phát sinh nhỏ khác, đồng thời dự trù thêm khoảng 5 – 10% để ứng phó với thay đổi thực tế khi thi công.
Lựa chọn vật liệu thi công bền và kinh tế
Vật liệu xây dựng ảnh hưởng trực tiếp đến độ bền và khả năng chống chịu của toàn bộ công trình, vì vậy anh/chị nên ưu tiên những chất liệu bền, chống ẩm và phù hợp ngân sách. Lựa chọn vật liệu đúng ngay từ đầu giúp giảm chi phí bảo trì lâu dài và nâng cao giá trị sử dụng cho ngôi nhà.
Lưu ý về kết cấu móng và chiều cao nhà
Kết cấu móng cần được tính toán dựa trên địa chất khu vực và tải trọng công trình để đảm bảo độ bền vững trong suốt quá trình sử dụng. Chiều cao ngôi nhà phải được thiết kế phù hợp nhằm tạo sự thông thoáng, tối ưu ánh sáng tự nhiên và tuân thủ quy định xây dựng địa phương.
Chọn đơn vị thiết kế thi công uy tín
Chọn đúng đơn vị thiết kế và thi công uy tín giúp mẫu nhà ống 1 tầng 5×20 được triển khai chính xác, an toàn và tiết kiệm thời gian. Anh/chị nên tham khảo kinh nghiệm, dự án thực tế và đánh giá khách hàng trước khi ký hợp đồng để đạt chất lượng thi công và tiến độ dự án.
Kiểm tra pháp lý và giấy phép xây dựng
Trước khi thi công, anh/chị cần kiểm tra giấy phép xây dựng, quy hoạch và các quy định pháp lý liên quan. Việc này giúp tránh rủi ro bị xử phạt, đình chỉ thi công hoặc phát sinh chi phí không mong muốn, đồng thời đảm bảo công trình được triển khai hợp pháp và an toàn.

Hy vọng những gợi ý về mẫu nhà ống 1 tầng đẹp 5×20 trên đây sẽ giúp anh/chị có định hướng rõ ràng khi xây dựng tổ ấm của mình. Nếu cần thêm mẫu thiết kế khác, anh/chị vui lòng liên hệ ngay Thợ Việt qua số HOTLINE 1800 8122 (miễn phí) để được hỗ trợ nhanh chóng.

