Anh/chị đang tìm ý tưởng thiết kế mẫu nhà 7x12m 1 tầng vừa đẹp, dễ xây dựng và phù hợp ngân sách gia đình? Thợ Việt giới thiệu đến quý anh/chị 101 mẫu nhà 7x12m 1 tầng thực tế, đa dạng phong cách, giúp tham khảo nhanh và dễ hình dung phương án phù hợp.

Ưu điểm nổi bật của mẫu nhà 7x12m 1 tầng
Mẫu nhà 7x12m 1 tầng đang được nhiều gia đình lựa chọn nhờ khả năng cân đối tốt giữa diện tích sử dụng. Dưới đây là những ưu điểm nổi bật giúp mẫu nhà này phù hợp cả khu vực đô thị lẫn nông thôn, đồng thời đáp ứng tốt nhu cầu ở thực lâu dài.
Tiết kiệm chi phí xây dựng
Mẫu nhà 7x12m 1 tầng giúp tối ưu chi phí xây dựng nhờ kết cấu đơn giản, diện tích hợp lý, hạn chế phát sinh vật tư và nhân công thi công. Bố trí toàn bộ công năng trên một mặt bằng còn giúp giảm đáng kể chi phí móng, cột, dầm và các hệ thống kỹ thuật phức tạp.

Thi công nhanh
Thiết kế một tầng với mặt bằng rõ ràng giúp quá trình thi công diễn ra liên tục, hạn chế gián đoạn và rút ngắn tổng thời gian xây dựng. Nhờ đó, anh/chị có thể sớm đưa công trình vào sử dụng, giảm áp lực chi phí thuê nhà tạm và các phát sinh sinh hoạt kéo dài.

Dễ dàng cải tạo và nâng cấp
Nhà 7x12m 1 tầng thuận lợi cho việc cải tạo nhờ kết cấu thấp tầng, dễ tiếp cận các hạng mục kỹ thuật và không gian sử dụng. Anh/chị có thể linh hoạt nâng cấp nội thất, điều chỉnh công năng hoặc xây thêm tầng khi nhu cầu sinh hoạt thay đổi theo thời gian.

Linh hoạt trong thiết kế
Diện tích 7x12m cho phép áp dụng linh hoạt nhiều phong cách thiết kế, từ hiện đại, tối giản đến mái Thái hoặc mái lệch. Không gian bên trong dễ dàng phân chia công năng hợp lý, đáp ứng tốt nhu cầu sinh hoạt kết hợp làm việc hoặc kinh doanh quy mô nhỏ.

Top những mẫu nhà 7x12m 1 tầng đẹp, tiết kiệm chi phí
Dưới đây là top những mẫu nhà 7x12m 1 tầng sang trọng, hợp xu hướng 2026 và tối ưu ngân sách xây dựng mà anh/chị có thể tham khảo.
Mẫu nhà 7x12m 1 tầng phong cách Hiện đại
Mẫu nhà 7x12m 1 tầng phong cách hiện đại gây ấn tượng với đường nét kiến trúc tối giản, hình khối rõ ràng và vật liệu xây dựng bền bỉ. Thiết kế ưu tiên không gian mở, nhiều cửa kính và màu sắc trung tính giúp ngôi nhà vừa thoáng đãng vừa tiết kiệm chi phí hoàn thiện.

Mẫu nhà 7x12m 1 tầng mái Thái
Nhà 7x12m 1 tầng mái Thái mang vẻ đẹp truyền thống kết hợp công năng hiện đại, phù hợp với khí hậu nóng ẩm. Mái Thái giật cấp không chỉ tạo tính thẩm mỹ cao mà còn giúp thoát nước mưa nhanh, giảm chi phí bảo trì về lâu dài.

Mẫu nhà 7x12m 1 tầng mái bằng
Mẫu nhà mái bằng 7x12m mang phong cách kiến trúc tối giản, phù hợp với các khu đô thị và khu đất vuông vắn. Mái bằng giúp tiết kiệm vật liệu và nhân công thi công so với mái dốc, đồng thời dễ dàng bố trí hệ thống năng lượng mặt trời.

Mẫu nhà 7x12m 1 tầng phong cách Tân cổ điển
Nhà 7x12m theo phong cách tân cổ điển kết hợp những chi tiết phào chỉ tinh tế với bố cục hiện đại, tạo không gian sang trọng. Mặc dù chi tiết trang trí nhiều hơn, nhưng việc thiết kế khoa học giúp kiểm soát tốt chi phí xây dựng và hoàn thiện.

Mẫu nhà 7x12m 1 tầng có sân vườn
Mẫu nhà 7x12m có sân vườn tạo không gian sống gần gũi thiên nhiên, đáp ứng nhu cầu nghỉ dưỡng tại gia. Sân vườn trước hoặc sau nhà còn giúp điều hòa không khí, nâng cao chất lượng sống mà vẫn giữ được chi phí hợp lý.

Mẫu nhà 7x12m 1 tầng có gác lửng
Nhà 7x12m 1 tầng có gác lửng tận dụng chiều cao trần để mở rộng diện tích sử dụng mà không xây thêm tầng. Gác lửng phù hợp làm phòng ngủ, phòng làm việc hoặc góc thư giãn, đem lại giải pháp linh hoạt cho nhu cầu gia đình.

Mẫu nhà 7x12m 1 tầng 2 phòng ngủ
Mẫu nhà 7x12m với 2 phòng ngủ được bố trí hợp lý cho gia đình nhỏ hoặc vợ chồng trẻ, tối ưu không gian sinh hoạt chung. Thiết kế đơn giản và công năng rõ ràng giúp kiểm soát chi phí, đồng thời vẫn đảm bảo tiện nghi hàng ngày.

Mẫu nhà 7x12m 1 tầng 3 phòng ngủ
Nhà 7x12m 1 tầng 3 phòng ngủ phù hợp với gia đình nhiều thành viên, đảm bảo mỗi người có không gian riêng tư. Bố cục phòng ngủ cân đối với phòng khách và bếp tạo lưu thông không khí tốt, góp phần nâng cao chất lượng sống.

Tham khảo: Dịch vụ sửa nhà trọn gói
Bản vẽ nhà 7x12m 1 tầng chi tiết
Bản vẽ nhà 7x12m 1 tầng chi tiết đóng vai trò quan trọng trong việc định hình công năng, bố cục không gian và kiểm soát chi phí xây dựng. Dưới đây là các hạng mục bản vẽ cần thiết giúp anh/chị dễ dàng hình dung tổng thể ngôi nhà và triển khai thi công hiệu quả.
Bản vẽ mặt bằng tổng thể
Bản vẽ mặt bằng tổng thể thể hiện rõ cách bố trí các không gian chức năng như phòng khách, bếp, phòng ngủ và khu vệ sinh. Thông qua mặt bằng, gia chủ dễ dàng hình dung luồng di chuyển, tỷ lệ diện tích và mức độ tối ưu công năng sử dụng.

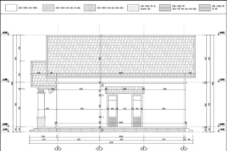
Bản vẽ mặt đứng
Bản vẽ mặt đứng thể hiện rõ hình thức kiến trúc bên ngoài của nhà 7x12m 1 tầng theo từng hướng nhìn cụ thể, giúp hình dung tổng thể công trình. Các chi tiết như mái, cửa, màu sắc và vật liệu hoàn thiện được trình bày rõ ràng, hỗ trợ đánh giá thẩm mỹ và tính hài hòa kiến trúc tổng thể.

Bản vẽ mặt cắt
Bản vẽ mặt cắt thể hiện cấu tạo không gian theo chiều cao, bao gồm nền, trần, mái và cao độ từng khu vực chức năng trong nhà. Tài liệu này là cơ sở quan trọng để kiểm soát chiều cao thông thủy, khả năng thông gió tự nhiên và phương án mở rộng công trình về sau.
Bản vẽ mặt bên
Bản vẽ mặt bên thể hiện chiều cao công trình, cao độ sàn, mái và mối liên kết giữa các không gian theo phương đứng của nhà 7x12m 1 tầng. Thông qua mặt bên, anh/chị dễ dàng kiểm soát tỷ lệ kiến trúc, giải pháp lấy sáng hông nhà và khả năng thông gió tự nhiên.

Bản vẽ mặt sau
Bản vẽ mặt sau giúp làm rõ thiết kế các khu vực phụ như bếp, sân sau, cửa thoát khí hoặc cửa hậu nếu có. Phần bản vẽ này hỗ trợ đánh giá khả năng thông thoáng, bố trí cửa sổ hợp lý và đảm bảo sự đồng bộ kiến trúc với tổng thể công trình.

Lưu ý quan trọng khi thiết kế mẫu nhà 7x12m 1 tầng
Khi thiết kế nhà 7x12m 1 tầng, anh/chị cần cân nhắc kỹ lưỡng nhiều yếu tố để không gian sống tiện nghi, khoa học và phù hợp. Dưới đây là những lưu ý quan trọng giúp quá trình thiết kế hạn chế phát sinh chi phí, đồng thời nâng cao giá trị công trình.
- Bố cục khoa học: Phân chia không gian hợp lý để tối ưu 2-3 phòng ngủ trên một mặt sàn mà không gây bí bách.
- Không gian mở: Liên kết phòng khách và bếp ăn giúp mở rộng tầm nhìn, tạo sự thông thoáng xuyên suốt ngôi nhà.
- Ánh sáng tự nhiên: Thiết kế giếng trời hoặc sân sau để đảm bảo mọi phòng chức năng đều nhận được khí trời.
- Phong cách tối giản: Ưu tiên kiến trúc hiện đại, lược bỏ các chi tiết rườm rà nhằm tiết kiệm diện tích và chi phí.
- Nội thất tinh gọn: Sử dụng đồ dùng đa năng và kích thước phù hợp để giải phóng không gian di chuyển.
- Màu sắc trang nhã: Sử dụng tông màu sáng làm chủ đạo để tạo cảm giác ngôi nhà rộng rãi và sang trọng hơn.
- Yếu tố phong thủy: Anh/chị cần chú trọng hướng cửa và vị trí bếp để thu hút tài lộc, bình an.

Hy vọng qua bài viết, anh/chị đã có thêm thông tin hữu ích và ý tưởng phù hợp khi lựa chọn mẫu nhà 7x12m 1 tầng cho gia đình mình. Nếu cần đặt lịch khảo sát thực tế, quý khách hàng vui lòng liên hệ Thợ Việt qua số HOTLINE 1800 8122 (miễn phí) để được hỗ trợ nhanh chóng.

